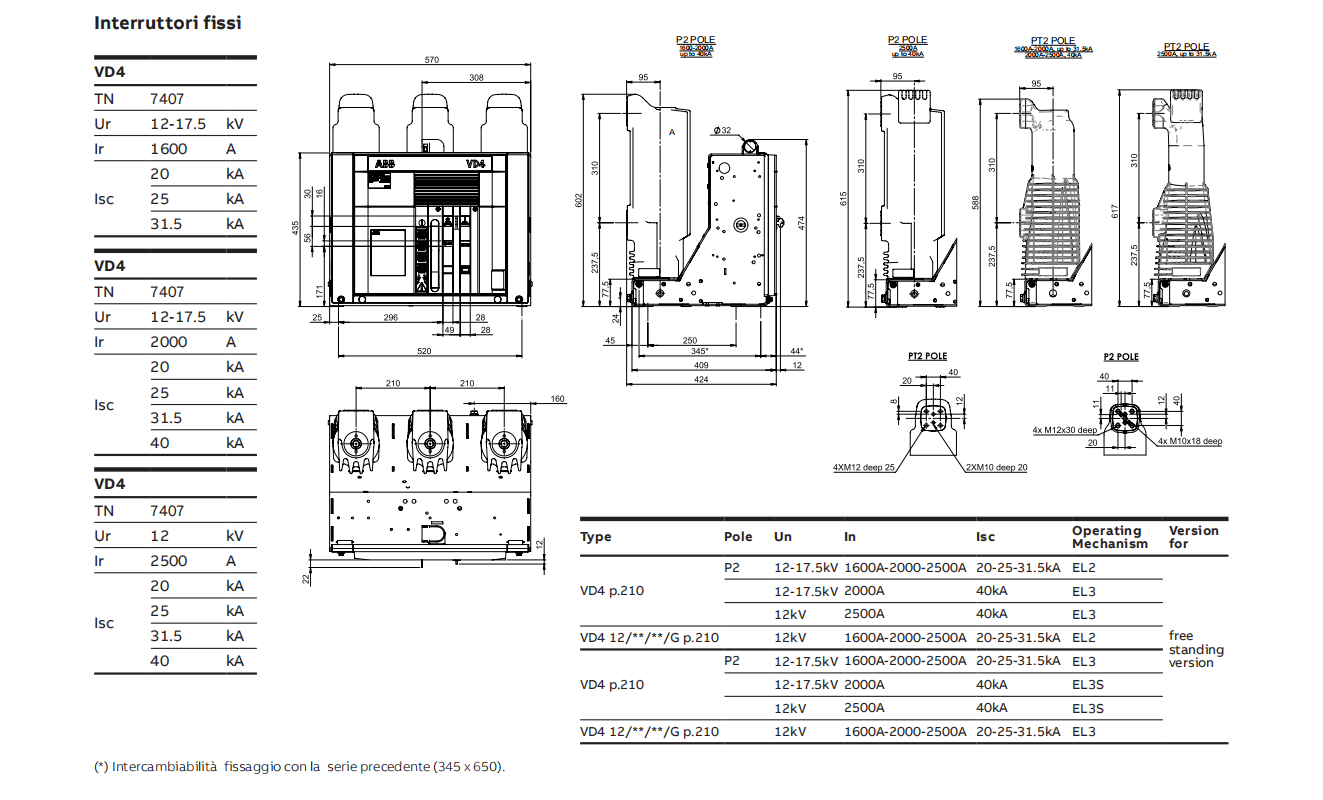
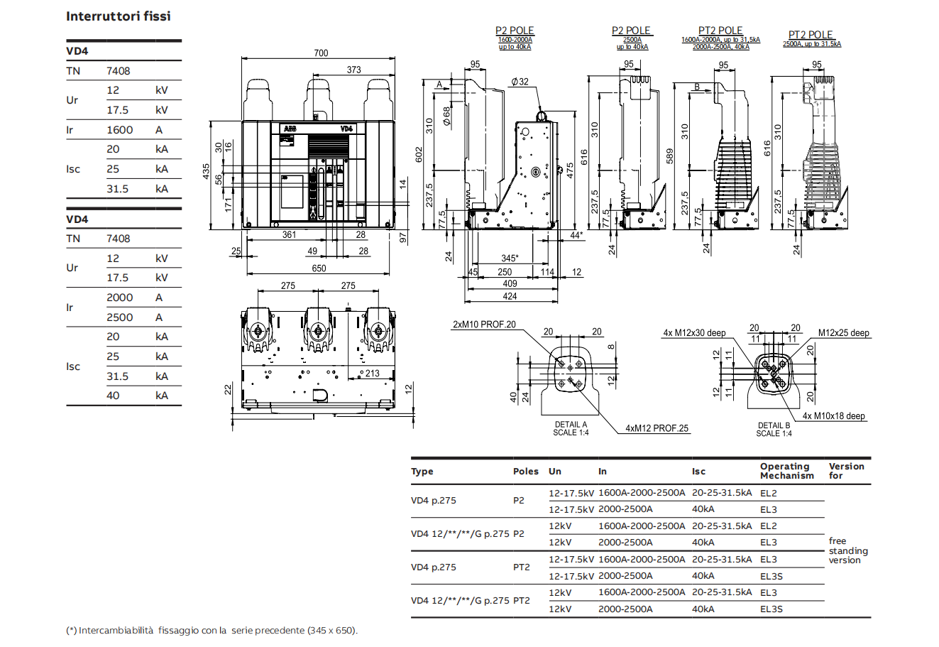
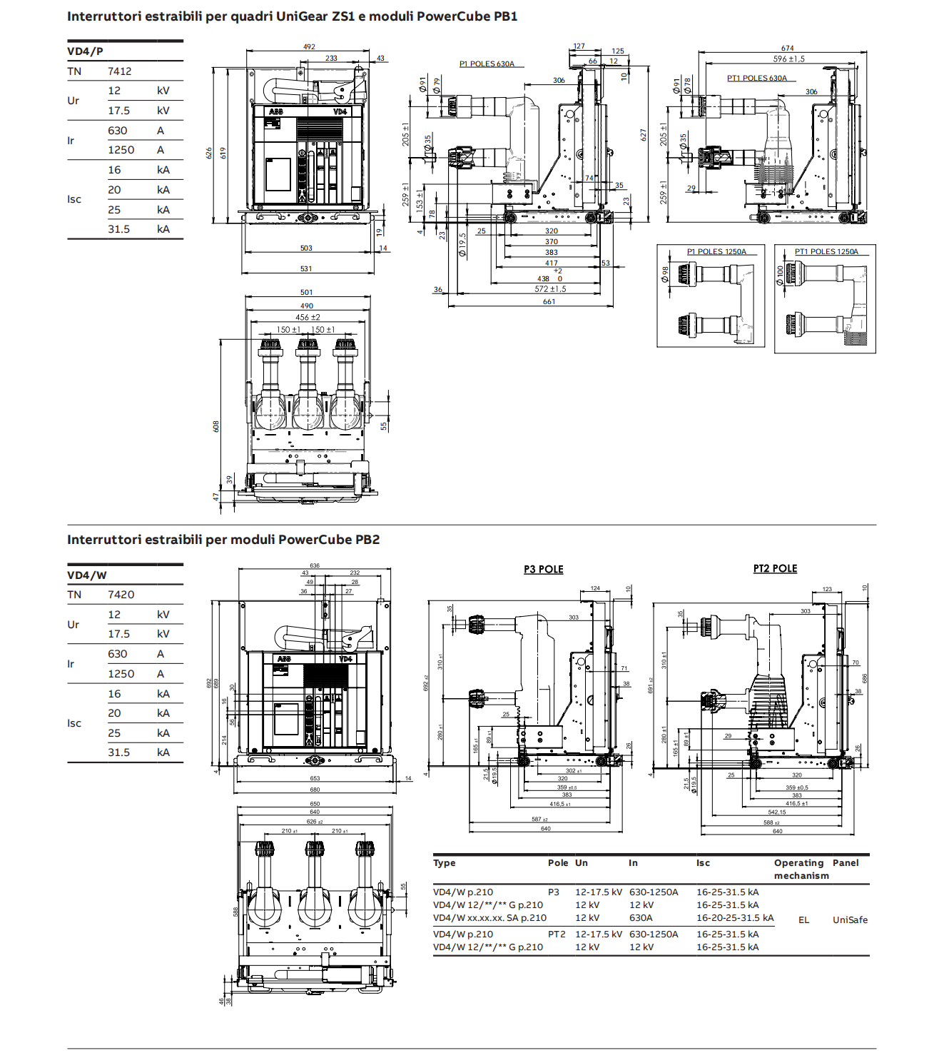
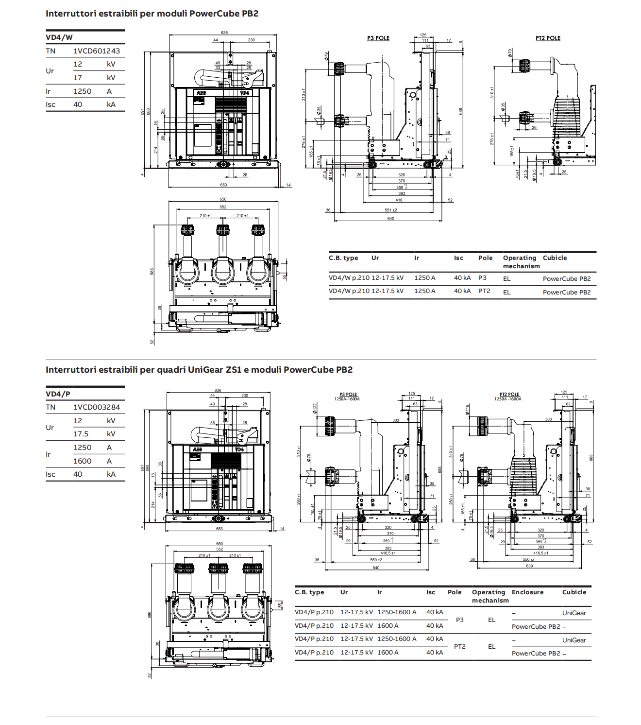
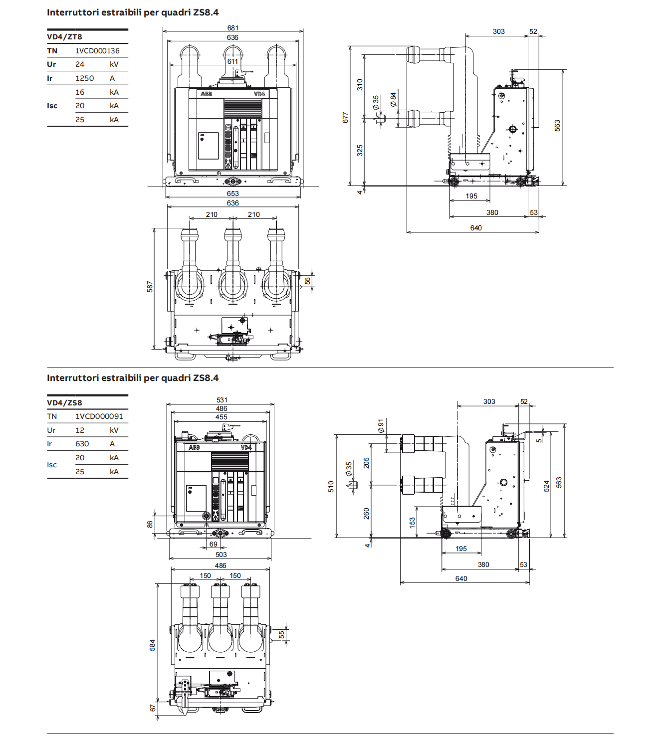
The VD4 vacuum circuit breaker uses solidly enclosed pole technology to ensure reliable protection of the vacuum interrupter, preventing mechanical impact, dust, and moisture influence. The innovative functional modular design features compact dimensions, spring energy storage operating mechanism, and standard anti-pumping function, ensuring stable performance and long service life. Fixed or withdrawable installation options are available, along with complete secondary accessories and safety interlocking solutions. Moreover, the energy-saving, low-carbon manufacturing, operation, and recycling process are environmentally friendly.















